KORTER 9-12
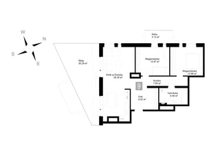
Квартира 9
А - Класс энергопотребления
345 000€
Комнаты: 3
Общая площадь квартиры: 112 м²
Внутренняя площадь: 76,6 м²
Терраса/веранда: 30,3 м² и 5,1 м²
Этаж/Этажей: 4/5
Ванная комната: душевая, новая сантехника, ванна.
Отопление и вентиляция: центральное отопление, подогрев пола.
Дополнительные данные: балкон 30,3 м², новая электропроводка, кладовая, лифт, комнаты раздельные, высокие потолки
Кухня: открытая кухня.
Связь и безопасность: подъезд закрытий.
В ЦЕНУ ВКЛЮЧЕНО
Окончательная готовность квартиры и здания согласно проектной документации и пакету внутренней отделки.
Плата за строительство и подключение инженерных сетей (вода, электричество, канализация).
Готовность к подключению кабельного телевидения, телефонной связи и охранной системы.
В ЦЕНУ НЕ ВКЛЮЧЕНО
Плата за подключение интернета, кабельного телевидения, телефонной связи и охранной системы.
Нотариальные сборы и государственные пошлины, связанные с договором купли-продажи.
Застройщик оставляет за собой право вносить изменения в прейскурант.
ПАРКОВКА / КЛАДОВАЯ
К стоимости квартиры добавляется стоимость кладовой и парковочного места. Размеры кладовых:
- 2,7м² - 5 000€
- 4,5м² - 7 000€
Парковочное место во дворе: 10 000€
Парковочное место под навесом: 12 000€
Все парковочные места имеют готовность для зарядки электромобилей.
Застройщиком является компания Mapri Ehitus с 20-летним опытом строительства, известная своими качественными проектами.
В интерьере использованы качественные материалы:
- Напольное покрытие Luxury Vinyl Tile (LVT)
- Розетки Schneider (Германия)
- Сантехника Hansgrohe (Германия)
- Плитка Marazzi (Италия)
- Сантехника Laufen Pro (Швейцария)
- Скрытые петли и магнитные замки на межкомнатных дверях
Бутик-дом K14 расположен в самом сердце Mustamäe на тихой улице, где повседневная жизнь семей с детьми сделана особенно комфортной. Утренняя рутина проста - детский сад находится на той же улице, а поблизости есть еще несколько хороших вариантов: Rõõmupesa, Delfiin, Sinilind, Tammetõru, Kikas и Sõbrakese и другие детские сады.
Возможности образования для детей школьного возраста разнообразны и все находятся в шаговой доступности: Tallinna Saksa Gümnaasium, Tehnikagümnaasium, Majanduskool, Tööstushariduskeskus, Tervishoiu Kõrgkool и Mustamäe huvikool предлагают образование на разных уровнях.
Повседневные дела можно решить в пешей доступности или очень короткой поездкой на машине - вокруг несколько крупных торговых центров. В Mustamäe keskus находится кинотеатр Apollo, рядом Karia Market, Mustika keskus и продуктовые магазины Lidl, Selver, Rimi и Maxima. Для проведения досуга есть множество парков и спортивных клубов.
Благодаря хорошему соединению общественного транспорта можно быстро и удобно добраться до центра города, что делает район особенно привлекательным для работающих людей.
С клиентом заключается договор бронирования сроком до 1 месяца, до подписания обязательственно-правового договора. Для подтверждения покупки Покупатель вносит бронь в размере 5000€.
Для клиентов YAHouse жилищный кредит без платы за договор! Узнай код у нас.
Добавление товара в корзину
Зиина Комарова
+372 56 800 724
ziina@yahouse.ee